
商品ラインナップ 二階建て
はじめてのマイホームに
ちょうどいい
3人にぴったり、暮らしが広がる家
遊んで、笑って、育っていく毎日に
+αのゆとりが、家族の未来をつくる

ノルディック1
高品質・低価格…
マモルハウスの企画住宅
間取り 南玄関プラン
販売価格
付帯工事費、諸費用は別途
建物
本体価格
1,650
万円
(税込)
LD+K+フリースペース
1F

2F

●床面積
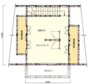
永遠の美しいデザイン。北欧の優雅さをビックルーフに託して、いつまでも若々しい暮らし方を提案します。2Fフリースペースは間仕切りとドアを付けて、2部屋にすることも可能。屋根裏収納もできる機能的な間取りです。
建築面積
47.18㎡ 14.25坪
1F床面積
47.18㎡ 14.25坪
2F床面積
22.25㎡ 6.75坪
延床面積
69.56㎡ 21.00坪

ドリーム3
高品質・低価格…
マモルハウスの企画住宅
間取り 西玄関プラン
販売価格
付帯工事費、諸費用は別途
建物
本体価格
1,680
万円
(税込)
3LDK
1F

2F

●床面積
若い人の将来を考えたコストパフォーマンスを追求した家です。子育て世代のための合理的で機能的な間取りです。壁付けキッチンは空間を有効活用でき、コンパクトながら浴室もゆったり1坪サイズ。2階に3つのお部屋を作りました。デザイン的にも優れた人気商品です。
21.54坪、25.92、28.68坪タイプもあります。
建築面積
38.17㎡ 11.54坪
1F床面積
37.26㎡ 11.27坪
2F床面積
37.26㎡ 11.27坪
延床面積
74.52㎡ 22.54坪

ファミリー
高品質・低価格…
マモルハウスの企画住宅
間取り 西玄関プラン
販売価格
付帯工事費、諸費用は別途
建物
本体価格
1,700
万円
(税込)
2LDK(3LDK対応)
1F

2F

●床面積
日本のどの風景にもマッチする優しい装いの外観。新しい生活様式の玄関に手洗器、LDKに多目的に使えるスタディコーナー、豪華なTVボードと棚、2F主寝室にはドレッサースペースもセットした気くばり設計。コンパクトながら収納一杯の間取りが人気です。ウッドデッキもおすすめしています。
24.49坪、28.25坪タイプもあります。
建築面積
38.50㎡ 11.62坪
1F床面積
38.50㎡ 11.62坪
2F床面積
38.50㎡ 11.62坪
延床面積
77.00㎡ 23.24坪

ニュースター
高品質・低価格…
マモルハウスの企画住宅
間取り 西玄関プラン
販売価格
付帯工事費、諸費用は別途
建物
本体価格
1,720
万円
(税込)
2LDK(3LDK対応)
1F

2F

●床面積
狭小地に最適なコンパクトプラン。1階はキッチンを壁付けにしてダイニングをセット。配膳の距離が近くて便利です。また窓の外を眺めながらお料理が出来ます。リビングの大きな窓は開放感に溢れ、ウットデッキ等もセットできます。2階の洋室Bは仕切ると2部屋になり家族構成の変化に対応できるプランです。2階寝室近くにトイレはもちろん洗面台をセットした気配り設計が人気です。外壁はブラックのシンプルモダンなデザインに木目調をアクセントに加え豪華さを演出しています。
建築面積
41.40㎡ 12.50坪
1F床面積
37.26㎡ 11.25坪
2F床面積
41.40㎡ 12.50坪
延床面積
78.66㎡ 23.75坪

ドリーム2
高品質・低価格…
マモルハウスの企画住宅
間取り 西玄関プラン
販売価格
付帯工事費、諸費用は別途
建物
本体価格
1,750
万円
(税込)
3LDK+畳コーナー
1F

2F

●床面積
コンパクトながら欲しいものをセットした欲張り設計。
玄関はニッチがお迎え。LDKは会話のできる対面キッチン。
機能的で便利な畳コーナーもセットしました。2Fはクローゼット付の3部屋。トイレもセットしています。可愛い外観デザインも人気の商品です。
21.11坪、23.36、27.99坪タイプもあります。
建築面積
42.12㎡ 12.80坪
1F床面積
42.12㎡ 12.80坪
2F床面積
42.12㎡ 12.80坪
延床面積
84.24㎡ 25.48坪

ドリーム7
高品質・低価格…
マモルハウスの企画住宅
間取り 西玄関プラン
販売価格
付帯工事費、諸費用は別途
建物
本体価格
1,750
万円
(税込)
3LDK+畳コーナー
1F

2F

●床面積
南側全体に大きな窓を配置して、どの部屋も明るい太陽光一杯の家。庭先につながるスペースにウッドデッキがおすすめ。
LDKにはなんにでも使える便利な畳コーナーをセット。対面キッチンはじめ家族の対話を重視した機能的プラン。2F各部屋には大きなクローゼットをセットした収納一杯の人気な間取りです。
23.00坪タイプもあります。
建築面積
42.12㎡ 12.74坪
1F床面積
42.12㎡ 12.74坪
2F床面積
42.12㎡ 12.74坪
延床面積
84.24㎡ 25.48坪

レイヤード
高品質・低価格…
マモルハウスの企画住宅
間取り 東玄関プラン
販売価格
付帯工事費、諸費用は別途
建物
本体価格
1,760
万円
(税込)
3LDK
1F

2F

●床面積
コンパクトで機能的な間取り。外観のシンプルなデザインも好評です。LDKにカウンターを2つ設けてスタディとワークに両方使える気配り設計です。2階の主寝室にウォークインクローゼットとカウンターをセット。奥様お気に入りの間取りです。
建築面積
47.20㎡ 14.27坪
1F床面積
40.99㎡ 12.39坪
2F床面積
47.20㎡ 14.27坪
延床面積
88.19㎡ 26.66坪

ウッディベラ
高品質・低価格…
マモルハウスの企画住宅
間取り 東玄関プラン
販売価格
付帯工事費、諸費用は別途
建物
本体価格
1,760
万円
(税込)
3LDK+パントリー
1F

2F

●床面積
子育て世代の楽しい暮らしの提案。奥様の家事動線をしっかり考えました。コンパクトながら収納一杯のプランです。木の温もりを感じさせる心地良い住宅です。LDKにスタディコーナー、キッチン裏にはパントリー。パントリー内にもカウンターと棚をセット。壁材も木材を取り入れたコーディネート住宅です。
建築面積
45.54㎡ 13.75坪
1F床面積
43.26㎡ 13.05坪
2F床面積
45.54㎡ 13.75坪
延床面積
88.80㎡ 26.80坪

ノルディック2
高品質・低価格…
マモルハウスの企画住宅
間取り 南玄関プラン
販売価格
付帯工事費、諸費用は別途
建物
本体価格
1,810
万円
(税込)
LD+K+フリースペース
1F

2F

●床面積
開放感溢れる若々しい暮らしの提案。都市部にあっても別荘タイプでも利用されている永遠の美しいデザイン。北欧の優雅さをたたえるビックルーフが人気の商品。1Fは利用価値のある収納スペース。2Fのフリースペースには2部屋にすることも可能。屋根裏収納も活かせる合理的な間取りです。
建築面積
59.62㎡ 18.00坪
1F床面積
59.62㎡ 18.00坪
2F床面積
29.81㎡ 9.00坪
延床面積
89.43㎡ 27.00坪

エミール
高品質・低価格…
マモルハウスの企画住宅
間取り 南玄関プラン
販売価格
付帯工事費、諸費用は別途
建物
本体価格
1,830
万円
(税込)
3LDK
+ファミリークローゼット
1F

2F

●床面積
玄関に入って手洗器、LDKにカウンターと棚をセットして、スタディとワークができるように子育て対応の気配り設計。2階主寝室にはウォークインクローゼットとファミリークローゼットを設置、収納重視の間取りにしました。スッキリした外観デザインは木目調を活かしたやさしい色合いが人気です。
建築面積
47.61㎡ 14.40坪
1F床面積
45.13㎡ 13.65坪
2F床面積
47.20㎡ 14.27坪
延床面積
92.33㎡ 27.92坪

ジャパニーズ
高品質・低価格…
マモルハウスの企画住宅
間取り 西玄関プラン
販売価格
付帯工事費、諸費用は別途
建物
本体価格
1,860
万円
(税込)
2LDK(3LDK対応)
+畳コーナー
1F

2F

●床面積
玄関ホールに広めの手洗器をセット。新しい生活様式の家に。畳コーナーは大好評の間取り。多機能で便利なスペースです。明るく広いLDKにTVボード、カウンターをセットした欲張り設計。2F主寝室のドレッサースペースはカウンターと棚をセット。お化粧も仕事もできる便利なコーナー。ベランダも家族みんなで使える便利なスペース。オプションのウッドデッキがおすすめです。
23.24坪、25.49坪タイプもあります。
建築面積
46.78㎡ 14.12坪
1F床面積
46.78㎡ 14.12坪
2F床面積
46.78㎡ 14.12坪
延床面積
93.57㎡ 28.25坪

シリウス
高品質・低価格…
マモルハウスの企画住宅
間取り 西玄関プラン
販売価格
付帯工事費、諸費用は別途
建物
本体価格
1,860
万円
(税込)
2LDK(3LDK対応)
+畳コーナー
1F

2F

●床面積
広々としたLDKにはオープンキッチンと畳コーナーをセット。楽しい家族のコミュニケーションを重視したプランです。大きな窓から太陽の光を一杯入れてオプションのウッドデッキをおすすめしています。2Fには2つに仕切れる部屋をご用意。家族構成の変化に対応できる気配り設計。どの部屋にも大きなクローゼットをセットしています。
23.24坪、25.49坪タイプもあります。
建築面積
46.78㎡ 14.12坪
1F床面積
46.78㎡ 14.12坪
2F床面積
46.78㎡ 14.12坪
延床面積
93.57㎡ 28.25坪

パラレル
高品質・低価格…
マモルハウスの企画住宅
間取り 南玄関プラン
販売価格
付帯工事費、諸費用は別途
建物
本体価格
1,890
万円
(税込)
3LDK+フリースペース
1F

2F

●床面積
玄関に入ってLDKと洗面台、トイレへつながる2ヶ所の入口にした人気オリジナル間取り。広々とした脱衣室は収納力も含め家事分担に対応できる多機能のあるスペースにしました。2階にフリーホールとフリースペースをセットして、ライフスタイル、ライフステージに対応できる間取りです。吹抜けもあり明るく、深みのある家にしました。
建築面積
52.79㎡ 15.96坪
1F床面積
47.20㎡ 14.27坪
2F床面積
49.06㎡ 14.84坪
延床面積
96.26㎡ 29.11坪

スノーライン
高品質・低価格…
マモルハウスの企画住宅
間取り 西玄関プラン
販売価格
付帯工事費、諸費用は別途
建物
本体価格
1,910
万円
(税込)
3LDK
1F

2F

●床面積
美しいシルエットが人気の新商品。広い脱衣室にはカウンターや棚をセットして、家事はもちろんデスクワークもできる機能的なスペースにしました。洗面台は脱衣室と別に独立して大きく使い易いものに。キッチン裏は収納スペースを充分にとって奥様のお好みのデザインで。吹抜けのある明るい住宅に仕上げました。
建築面積
51.96㎡ 15.71坪
1F床面積
46.16㎡ 13.96坪
2F床面積
51.13㎡ 15.46坪
延床面積
97.29㎡ 29.42坪

ベラノーチェ
高品質・低価格…
マモルハウスの企画住宅
間取り 東玄関プラン
販売価格
付帯工事費、諸費用は別途
建物
本体価格
1,980
万円
(税込)
3LDK
1F

2F

●床面積
ベラノーチェはロマンティックなイメージ。ヨーロッパのモダニズムを感じさせるデザインの家。いつまでも若々しくいつもときめいていたい人たちの住宅です。晴れの日はテラスダイニング、毎日がリゾート気分。カウンターや棚もセットしてスタディコーナーとしてとても便利なコーナー。大好評の間取りです。
建築面積
62.10㎡ 18.75坪
1F床面積
50.51㎡ 15.25坪
2F床面積
50.51㎡ 15.25坪
延床面積
101.02㎡ 30.50坪

グランベラ
高品質・低価格…
マモルハウスの企画住宅
間取り 東玄関プラン
販売価格
付帯工事費、諸費用は別途
建物
本体価格
1,980
万円
(税込)
3LDK
1F

2F

●床面積
ヨーロッパのモダニズムを感じさせるデザインの家。ダンディーな色づかいで人気の外観。天気の良い日は一回のテラスでダイニング。毎日がリゾート気分。2階のベランダは広々スペース、ミニ家庭菜園も可能。イスを置いて夕涼みも良し、自然を感じる空間です。家族みんなで活用して下さい。主寝室にはウォークインクローゼットをセット。収納一杯の家にしました。
建築面積
50.60㎡ 15.30坪
1F床面積
50.52㎡ 15.28坪
2F床面積
50.51㎡ 15.28坪
延床面積
101.03㎡ 30.56坪

シンプル
ナチュラル
高品質・低価格…
マモルハウスの企画住宅
間取り 西玄関プラン
販売価格
付帯工事費、諸費用は別途
建物
本体価格
1,980
万円
(税込)
3LDK+畳コーナー+ロフト
1F

2F

●床面積
外観はシンプルだけどちょっと豪華にしたのがポイント。招き屋根は太陽光発電システムにも最適でベストセラー商品。広いバルコニーはリッチも演出しているコミュニケーションスペース。1Fは便利な畳コーナーをセット。2Fはロフトも使える機能的な間取りが好評です。
建築面積
55.06㎡ 16.62坪
1F床面積
51.34㎡ 15.50坪
2F床面積
51.34㎡ 15.50坪
延床面積
102.68㎡ 31.00坪

マリン
高品質・低価格…
マモルハウスの企画住宅
間取り 南玄関プラン
販売価格
付帯工事費、諸費用は別途
建物
本体価格
1,980
万円
(税込)
3LDK+畳コーナー
1F

2F

●床面積
1階に様々に活用できるタタミコーナーを設置。小さいお子様を遊ばせていてもキッチンから見えるので安心です。LDKにワークスペースや棚をセットした機能的な間取りに。2階にも洗面台をセットした気配り設計。2階バルコニーは晴れた日は海や山が望める理想の我が家に。
建築面積
51.34㎡ 15.53坪
1F床面積
51.34㎡ 15.53坪
2F床面積
51.34㎡ 15.53坪
延床面積
102.68㎡ 31.06坪

ベラフォルム
高品質・低価格…
マモルハウスの企画住宅
間取り 東玄関プラン
販売価格
付帯工事費、諸費用は別途
建物
本体価格
2,030
万円
(税込)
3LDK+シューズクローク
1F

2F

●床面積
ベラフォルムはその名の通り美しい形を持った住宅です。ゆったりと悠々の住まいを目指した落ち着いた大人の暮らしを提案します。玄関にシューズクローク、キッチン裏に食品庫をセット。LDKに大きなフリー棚、洗面脱衣室にも可動棚をセットした収納一杯の豪華仕様です。2Fのフリースペースにカウンターと棚、主寝室にウォークインクローゼットをセットした機能的な間取りにしました。
建築面積
52.17㎡ 15.75坪
1F床面積
52.17㎡ 15.75坪
2F床面積
52.17㎡ 15.75坪
延床面積
104.34㎡ 31.50坪

オイコス
高品質・低価格…
マモルハウスの企画住宅
間取り 北玄関プラン
販売価格
付帯工事費、諸費用は別途
建物
本体価格
2,030
万円
(税込)
3LDK+ファミリースペース
1F

2F

●床面積
玄関を入ってすぐの洗面カウンターや脱衣室にもカウンターを設けた家事ラクプラン。広い脱衣室は洗濯物干しも可能な機能的スペース。2階主寝室にはパウダーコーナーにもなるカウンターをつけて機能に使えます。ウォークインクローゼットのほか収納一杯の家。ファミリースペースも自由に使える人気の間取りです。
建築面積
49.27㎡ 16.28坪
1F床面積
51.75㎡ 15.65坪
2F床面積
53.82㎡ 16.28坪
延床面積
105.57㎡ 31.93坪

エポス
高品質・低価格…
マモルハウスの企画住宅
間取り 南玄関プラン
販売価格
付帯工事費、諸費用は別途
建物
本体価格
2,050
万円
(税込)
3LDK(4LDK対応)
1F

2F

●床面積
玄関を入ってお客様用と家族用の入り口を2つ設けました。洗面台を脱衣室から独立させ使い勝手を優先させています。キッチンと横並びで食卓をセットすることでLDKを広く使える間取りです。2階はフリーホールを自由に使えるようにしています。吹抜けを大きくとり、太陽の光を取り入れる明るい家にしました。
建築面積
59.62㎡ 18.03坪
1F床面積
56.31㎡ 17.03坪
2F床面積
50.92㎡ 15.40坪
延床面積
107.23㎡ 32.43坪

アーバン
高品質・低価格…
マモルハウスの企画住宅
間取り 南玄関プラン
販売価格
付帯工事費、諸費用は別途
建物
本体価格
2,120
万円
(税込)
3LDK
1F

2F

●床面積
南面に大きな窓を配置した太陽の日射しを一杯取り入れた開放感溢れるプラン。キッチンを壁付けにしてゆったりとLDKに。オシャレなリビング階段は都会的なデザインにマッチした素敵なスポットに。広々リビングは吹抜けにした贅沢な間取りにしました。
建築面積
60.45㎡ 18.28坪
1F床面積
50.32㎡ 15.22坪
2F床面積
60.45㎡ 18.28坪
延床面積
110.77㎡ 33.40坪

ドビー
高品質・低価格…
マモルハウスの企画住宅
間取り 南玄関プラン
販売価格
付帯工事費、諸費用は別途
建物
本体価格
2,150
万円
(税込)
3LDK(4LDK対応)
+サンルーム
1F

2F

●床面積
明るい太陽、日射しをいっぱい入れる大きな窓をシックなデザインにまとめた人気商品。広々としたLDKにアイランドキッチン、食品庫もセット。脱衣室を兼ねたサンルームに多機能に使えるカウンター、独立した洗面台横に棚と家事楽機能設計。2Fフリーホールは家族構成に合わせて2部屋にもなる間取りです。
建築面積
56.31㎡ 17.03坪
1F床面積
56.31㎡ 17.03坪
2F床面積
56.31㎡ 17.03坪
延床面積
112.62㎡ 34.06坪

ナレッジ2
高品質・低価格…
マモルハウスの企画住宅
間取り 南玄関プラン
販売価格
付帯工事費、諸費用は別途
建物
本体価格
2,150
万円
(税込)
3LDK
1F

2F

●床面積
遊び心を大切にした楽しいプラン。プライバシーを守りながら開放感溢れる都市型住宅です。春には2Fの和室から桜を見ながら、そんな生活の提案です。玄関に宅配BOX、大きな収納を。LDKに食品庫、オプションのウッドデッキにつながる大きな窓と浴室から外へ出られるドアがこの間取りのポイント。ロフトもあり、リゾート気分を味わえる楽しい間取りにしました。
建築面積
56.31㎡ 17.03坪
1F床面積
56.31㎡ 17.03坪
2F床面積
56.31㎡ 17.03坪
延床面積
112.62㎡ 34.06坪

ストリーム
高品質・低価格…
マモルハウスの企画住宅
間取り 南玄関プラン
販売価格
付帯工事費、諸費用は別途
建物
本体価格
2,220
万円
(税込)
3LDK+SIC
1F

2F

●床面積
自然の恵み、月と太陽を活かした設計で太陽光発電を提案した住宅にしています。内装は淡い木目柄と濃い造作材でスキットとした空間に。素朴さと洗練されたセンスがミックスした男前スタイル。1FのSIC、パントリー、2FのWIC、ドレッサールーム、ホールのフリー棚など収納一杯の間取りにしました。
建築面積
62.93㎡ 19.00坪
1F床面積
57.96㎡ 17.50坪
2F床面積
57.96㎡ 17.50坪
延床面積
115.93㎡ 35.00坪

アーヘン和風
高品質・低価格…
マモルハウスの企画住宅
間取り 北玄関プラン
販売価格
付帯工事費、諸費用は別途
建物
本体価格
2,220
万円
(税込)
4LDK(和室1)
1F

2F

●床面積
人気の和風モダンの家。ゆったりとした造りで、1Fに和室も用意。LDKとつながり便利で機能的日本人なら誰でも欲しがる畳の部屋です。LDKは天井を高くして化粧梁で和風を演出しています。使い勝手の良い洗面脱衣室、2Fには各部屋に大きなクローゼットをセットしています。ベランダは自然と戯れる家族みんなが活用できる憩の場所です。
建築面積
66.66㎡ 20.12坪
1F床面積
59.21㎡ 17.87坪
2F床面積
56.72㎡ 17.12坪
延床面積
115.93㎡ 35.00坪

アーヘンモダン
高品質・低価格…
マモルハウスの企画住宅
間取り 北玄関プラン
販売価格
付帯工事費、諸費用は別途
建物
本体価格
2,260
万円
(税込)
3LDK+畳コーナー
+フリースペース+ロフト
1F

2F

●床面積
斬新でモダンなデザインの人気商品。太陽光発電やウッドデッキはおすすめオプション。LDKに隣接して畳コーナーをセット。機能的で便利なスペースです。家事にスタディに使えるカウンター、大型TVボードもセット。2F主寝室にウォークインクローゼット、ドレッサースペースにカウンターと棚をセットした気配り設計。2Fホールにフリースペース、フリー棚、洗面台ロフトにも使える贅沢な間取りです。
建築面積
66.66㎡ 20.12坪
1F床面積
59.21㎡ 17.87坪
2F床面積
59.21㎡ 17.87坪
延床面積
118.42㎡ 35.75坪

エクスナレッジ
高品質・低価格…
マモルハウスの企画住宅
間取り 南玄関プラン
販売価格
付帯工事費、諸費用は別途
建物
本体価格
2,300
万円
(税込)
4LDK(和室1)
+フリースペース
1F

2F

●床面積
どんな街並みにも合う、スタンダードな寄せ棟屋根の家。南面に大きな窓を配置して、自然の恵の太陽光を一杯いれたプラン。1F玄関にSIC、押入れ付の和室。広い洗面脱衣室、キッチン脇のパントリー等気配り設計。2Fには洗面スペース、フリースペース。主寝室にドレッサースペース、WICをセットしたゆとりある暮らしを提案しています。
建築面積
66.24㎡ 20.00坪
1F床面積
63.76㎡ 19.25坪
2F床面積
57.55㎡ 17.37坪
延床面積
121.31㎡ 36.62坪

オリオン
高品質・低価格…
マモルハウスの企画住宅
間取り 南玄関プラン
販売価格
付帯工事費、諸費用は別途
建物
本体価格
2,360
万円
(税込)
4LDK(和室1)
1F

2F

●床面積
1Fに様々に活用できる畳の部屋をセット。リビングにスタディコーナー、広々とした脱衣室はサンルームとして活用できて便利。2F主寝室にはウォークインクローゼット、各居室にもカウンターと棚をセットした気配り設計の家です。
建築面積
64.59㎡ 19.53坪
1F床面積
62.10㎡ 18.78坪
2F床面積
60.45㎡ 18.29坪
延床面積
122.55㎡ 37.07坪

コンテンポラリー
高品質・低価格…
マモルハウスの企画住宅
間取り 南玄関プラン
販売価格
付帯工事費、諸費用は別途
建物
本体価格
2,360
万円
(税込)
4LDK
1F

2F

●床面積
ゆったりスペースのLDKにつながる6帖の和室は様々に活用できる便利なスペース。日本人なら誰でも欲しがる畳の部屋。浴室は1.25坪タイプの大型タイプ。1日の疲れを癒す至福の空間。2F各部屋は大型クローゼットをセット。バルコニーにつながるホールも広く有鈎活用できるゆとり設計の家です。
建築面積
63.76㎡ 19.25坪
1F床面積
61.27㎡ 18.50坪
2F床面積
63.76㎡ 19.25坪
延床面積
127.03㎡ 37.75坪

エクセレント
高品質・低価格…
マモルハウスの企画住宅
間取り 東玄関プラン
販売価格
付帯工事費、諸費用は別途
建物
本体価格
2,480
万円
(税込)
3LDK(和室1)
+フリースペース
1F

2F

●床面積
3LDKながら2Fの洋室を間仕切り2部屋にすること可能な間取り。首都圏の分譲地で大手HMに買った商品。オーソドックスな間取りと落ち着きのある寄せ棟屋根のベストセラー商品。2Fに洗面コーナー、ファミリースペース、バルコニーをセットした使い勝手の良い間取りになっています。
建築面積
70.93㎡ 21.41坪
1F床面積
68.73㎡ 20.75坪
2F床面積
61.82㎡ 18.66坪
延床面積
130.55㎡ 39.41坪

ナチュラル
高品質・低価格…
マモルハウスの企画住宅
間取り 南玄関プラン
販売価格
付帯工事費、諸費用は別途
建物
本体価格
2,680
万円
(税込)
4LDK(和室1)
1F

2F

●床面積
日本のエコ住宅、断熱工法の権威者、西方里見設計の住宅。
自然素材や最新の省エネ設備を駆使した、エネルギーのかからない健康快適住宅。北国の暖房、空調全てに配慮したエコ設計になっています。洗面所にSK、主寝室にウォークインクローゼット、食品庫、車イス対応のトイレ等の気配り設計です。
建築面積
93.57㎡ 28.25坪
1F床面積
81.15㎡ 24.50坪
2F床面積
54.65㎡ 16.50坪
延床面積
135.80㎡ 41.00坪
付帯工事費
①屋外給排水工事(30mまで)
※引込工事は別途
②水道メーターBOX設置工事
③下水道 最終マス接続工事
※引込工事は別途、日光市は公費対応
④上下水道 申請・検査費用
⑤電気幹線引込工事(10mまで)
⑥東京電力申請費用
⑦仮設電気工事
⑧仮設水道工事
⑨仮設足場工事
⑩仮設トイレ設置工事
⑪看板等設置工事
⑫残土処分費用
⑬宅地内整地費用
※浄化槽の場合は別途費用
諸費用
①建築地 現地・役所調査費用
※法務局資料取得含む
②設計 図面作製費用
③建築確認申請費用
※書類作成費用含む
④建築確認中間・完了検査等費用
※書類作成費用含む
⑤住宅瑕疵担保責任保険費用
⑥地盤調査費用
※地盤補強工事費用は別途
【付帯工事費】【諸費用】建物を建設する土地により異なります。
目安として250万円~350万円かかります。
ページをシェアする








